Services
OUR SKILLS
- Knowledge of local conditions, regulations and laws
- Large network of professionals
- Working experience on site
- Architectural- & Engenierig solutions
- Our languages: Spanish, English and German
- Honesty, positivity and dedication
- Strong organization and comunication skills
WE MANAGE
- Organization & control of documents
- Contracting of Architects, Engineers, Constructors, Suppliers, Installation Companies, Other Collaborators
- Budgets
- Creation & control of time schedules
- Selection & purchase of material
- Daily work processes
- Monitoring & control of all collaborators
MOREOVER
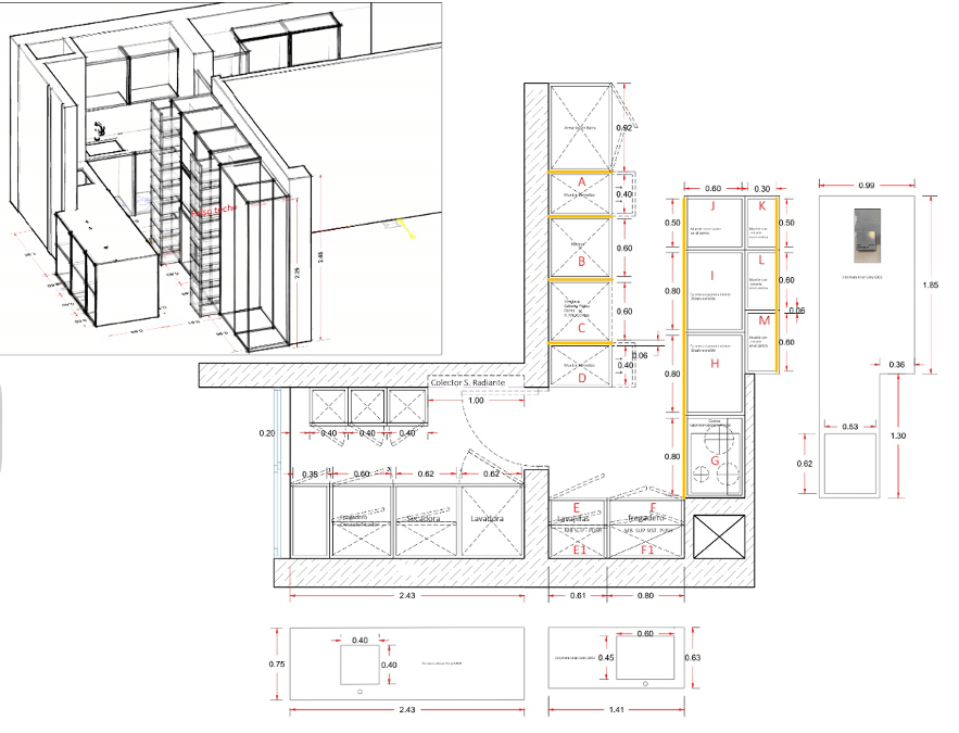
SKETCHS FOR SOLUTIONS ON SITE
At Trece Projects, our philosophy centers around providing our clients with unparalleled technical and graphic expertise. We believe in offering graphic and technical solutions with detailed drawings that help to streamline the project and solve any issues that may arise along the way.
This approach is one of the hallmarks of our company, and it allows us to leverage our extensive experience to ensure that every project is a resounding success. Whether we’re providing critical support during the planning phase or troubleshooting issues on-site, we pride ourselves on our ability to offer technical assistance at every stage of the project.
As a result, our partner companies can rest assured that they will always receive prompt and reliable technical support when they need it most. By providing our clients with this level of expertise and support, we’re able to ensure that the project runs smoothly and efficiently, without any costly delays or interruptions.
TIME PLANING
We use Microsoft Project to plan the time and control the schedule for the development of the work.
This ensures that our projects strictly follow the work schedule.